违约缺席指界公告20250018
日期:2025-12-09 15:15
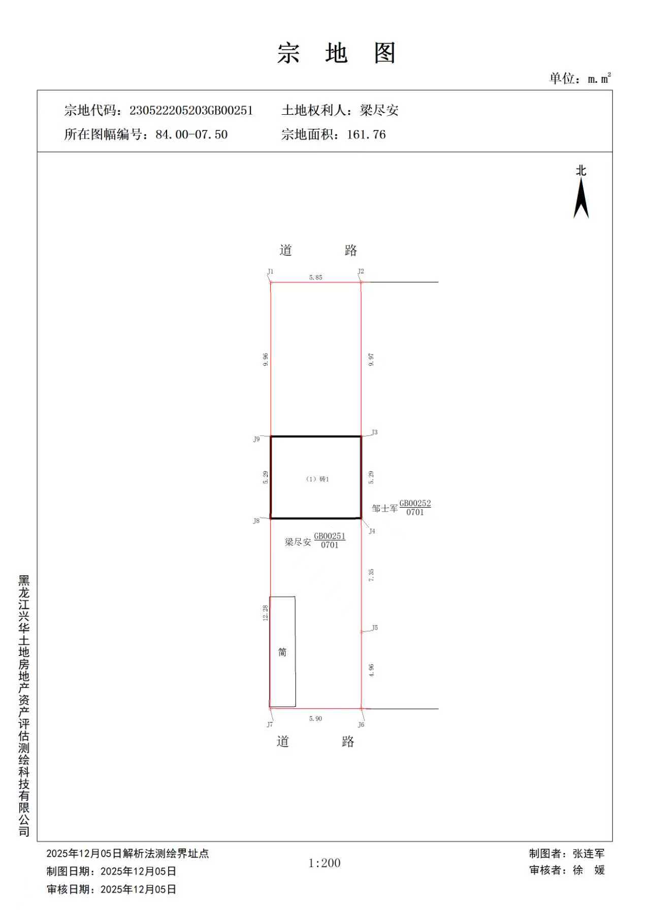
权利人:梁尽安
宗地:新镇乡1委203地籍子区251号(新镇乡1委24栋125号)
不动产单元编号:230522205203GB00251W00000000
土地面积为:161.76平方米
因上述宗地东侧相邻宗地权利人违约缺席指界,根据《地籍调查规程》相关规定,现将该宗地权属界线定界结果(详见宗地图,其中界址点J2-J6为违约缺席指界的界线)予以公告。
公告期为15个工作日,如有异议,请在公告期内向友谊县自然资源局不动产登记中心提出书面异议。公告期内未提出书面异议或异议不成立的,公告期满后,定界结果自动生效。
特此公告
附件:宗地图

友谊县自然资源局
2025年12月9日



